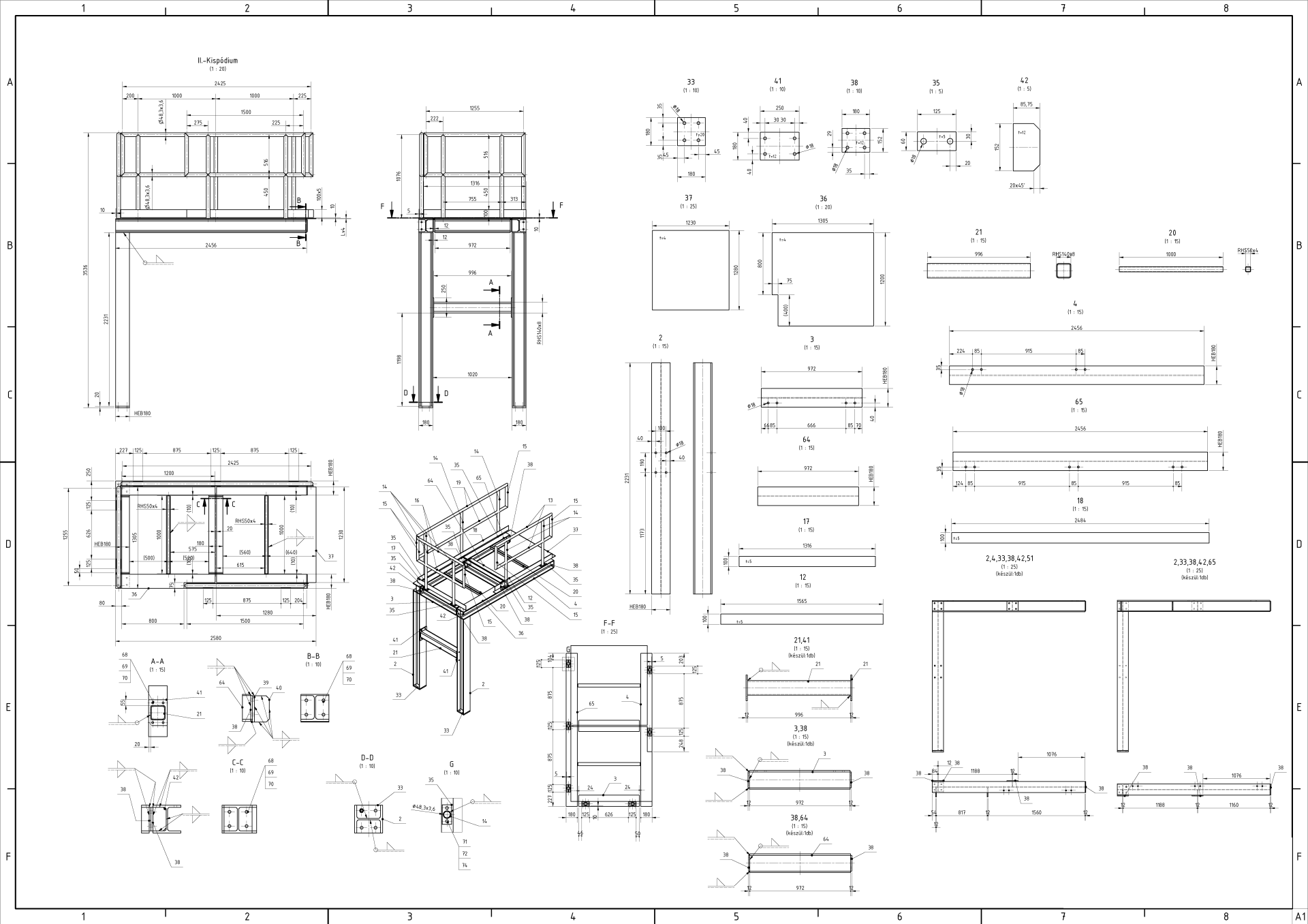
Ipari technológiákhoz tervezett tartószerkezetek
Technológiai berendezések, tartályok és csőhidak speciális igényeire szabva.
Szabványkövető tervezés extrém üzemi feltételekre. Dinamikus terhelésekre, korrózióra és szélsőséges üzemi körülményekre tervezve.
Szoros együttműködés a technológiai és gépészeti tervezéssel és kivitelezéssel.
A koncepciótól a megvalósításig – működő ipari megoldásokat szállítunk. Nemcsak terveket, hanem üzemképes megoldásokat adunk át.
Főbb termékek:
- Gépészeti acélszerkezetek
- Kezelőpódiumok
- Technológiai berendezések speciális acélszerkezetei
- Acél állványszerkezetek
- Ipari csőhidak